中古一戸建て 熊本市東区長嶺東5丁目
所在地
熊本市東区長嶺東5丁目
1,390万円
33.30坪
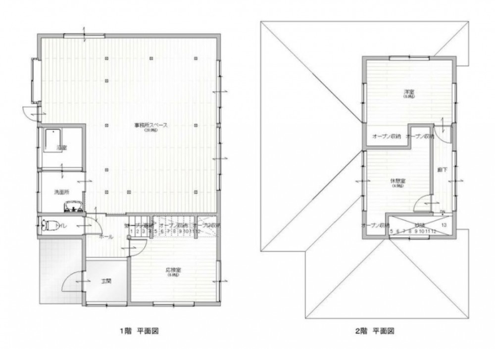
3LDK
閑静な住宅街
堀車庫並列駐車2台分!
物件概要
- 交通
-
バス停託麻まちづくりセンター前 まで 徒歩4分
- 接道状況
- 土地面積
- 公簿 200.11㎡ (60.53坪)
- 建物面積
- 110.10㎡ (33.30坪)
- 築年数
-
1989年
(平成元)
9月
築36年 - 建ぺい率
- 容積率
- 土地権利
- 所有権
- 構造および階数
- 木造 2階建 造 地上2階建
- 小学校区
- 託麻南 ( 1207m )
- 中学校区
- 長嶺 ( 1771m )
- 私道負担
- なし
- 地目
- 現況
- 空
- 引渡時期
- 相談
- 駐車場
- 有 2台
- 上水道
- 下水道
- ガス
- 都市計画
- 用途地域
- 設備・条件
- 備考
-
入居時期:2026年1月予定
2020年にリノベーション、売主様のご厚意で浴室取替とキッチン新設が可 - 取引態様
- 仲介








